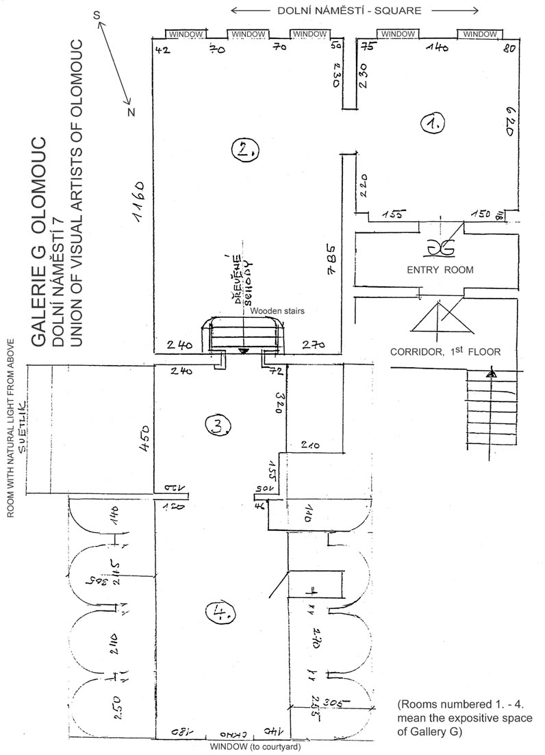
Historisches Haus
"Zur Weissen Rose"
Dolní náměstí 7, Olomouc

Galerie
G befindet sich im ersten Stockwerk des alten Bürgerhauses „Zur Weissen
Rose“, das im attraktiven und fräkventierten Korridor zwischen Horni und
Dolni náměstí steht. Die Geschichte dieses Objekts mit ausdruckvoller
Rokokofassade reicht bis in Anfänge der mittelalterlichen Urbanisierung. Im
Eingangstrakt, im Erdgeschoss und im ganzen ersten Stockwerk sind
architektonische Elemente aus der Zeit des umfangreichen Renaissanceumbaus
vertreten. Aus dieser Zeit stammt auch die ältere der zwei gemalten Balkendecken,
die dem Hauptausstellungssaal einzigartige Atmosphäre verleihen. Schon in den
Jahren 1966-1993 diente Teil dieser Räume als Ausstellungsraum (Grafikkabinett
der Bezirksgalerie der Bildenden Künste). Im Grafikkabinett verlief eine Reihe
von Ausstellungen mit hohem künstlerischem Niveau. Seitdem Jahre 1993 wirkt in
dieser Galerie der Union der Olmützer Künstler (UVUO). Nach der Sanierung, die
in den Jahren 1995-1998 verlief, wurden die Ausstellungsräume auf die ganze
Etage erweitert und bilden jetzt einem organischen Ganzen. Seitdem Jahre 1998
trägt der Saal einen neuen Namen „Galerie G“. Sowohl die
ästhetische als auch die technische Sicht reiht dieses Objekt zu den
attraktivsten Ausstellungsräumen im Mähren.